Logo facebook Logo Twitter Logo YouTube Logo RSS Logo YouTube Logo Instagram Logo Stage
Startseite Konversion / PHV / Zeitstrahl

Zeitstrahl Patrick-Henry-Village

Meilensteine der Entwicklung

März 2025

Gemeinderat beschließt Planungsmittel für Straßenbahnverlängerung nach PHV und Schwetzingen

Der Heidelberger Gemeinderat hat mehrheitlich einen weiteren Schritt zur künftigen Verkehrsanbindung des Patrick-Henry-Village (PHV) beschlossen. Demnach sollen die Planungen für die Straßenbahnvariante 3B vertieft werden. Gleichzeitig soll nach Abstimmung mit dem Rhein-Neckar-Kreis und deren betroffene Kommunen eine Untersuchung zu einer möglichen Verlängerung der Straßenbahn bis Schwetzingen durchgeführt werden.Die Stadt Heidelberg arbeitet intensiv an der städtebaulichen Entwicklung im Süden des Patrick-Henry-Village (PHV). Darüber hat die Stadt den Gemeinderat in seiner Sitzung am Donnerstag, 18. Oktober 2024, informiert. In enger Abstimmung mit der Bundesanstalt für Immobilienaufgaben (BImA) wurde die Aufteilung der zu entwickelnden Grundstücke festgelegt.


Oktober 2024

Patrick-Henry-Village: Bebauungspläne werden sukzessive aufgestellt

Die Stadt Heidelberg arbeitet intensiv an der städtebaulichen Entwicklung im Süden des Patrick-Henry-Village (PHV). Darüber hat die Stadt den Gemeinderat in seiner Sitzung am Donnerstag, 18. Oktober 2024, informiert. In enger Abstimmung mit der Bundesanstalt für Immobilienaufgaben (BImA) wurde die Aufteilung der zu entwickelnden Grundstücke festgelegt.


Juli 2024

Wettbewerb für den Neubau des Ankunftszentrums für Geflüchtete im Patrick Henry Village in Heidelberg entschieden

Für die Neuunterbringung des Ankunftszentrums für Geflüchtete im Patrick Henry Village (PHV) in Heidelberg hat das Land Baden-Württemberg in Abstimmung mit der Stadt Heidelberg und der Bundesanstalt für Immobilienaufgaben (BImA) einen nichtoffenen zweiphasigen Planungswettbewerb durchgeführt. 


22. Januar 2024

Oberbürgermeister Eckart Würzner (2. v. r.) und Erster Bürgermeister Jürgen Odszuck (r.) präsentieren mit Susanne Dübon und Philipp Menges von der BImA die Aufteilung der Entwicklungsflächen.

Patrick-Henry-Village: Meilenstein Jahr 2024

Die Stadt Heidelberg kann bald die ersten Grundstücke von der Bundesanstalt für Immobilienaufgaben (BImA) kaufen. Die Gespräche sind auf der Zielgeraden und sollen im Jahr 2024 zum Abschluss kommen. Grundlage der Entwicklung ist der dynamische Masterplan. Er sieht rund 5.350 Wohnungen vor. Baubeginn für die ersten 550 Einheiten soll noch 2024 sein.


21. Dezember 2023

Heidelberger Pilotprojekt „Circular City“ auf PHV

Ende November 2023 besuchte der Deutschlandfunk die Stadt Heidelberg und das Patrick-Henry-Village (PHV). Anlass war eine Serie zum Thema Beton-Recycling. Heidelberg ist mit seinem Pilotprojekt „Circular City – Heidelberg“ schon seit geraumer Zeit Vorreiter bei den Themen zirkuläres Bauen, Wiederverwendung von Materialien aus Bestandsgebäuden sowie des Baumaterialien- und Sekundärrohstoff-Managements.


12. Dezember 2023

Stadt hat die Website phv-verbindet überarbeitet

Hinter den Kulissen wird eifrig an der Weiterentwicklung des Patrick Henry Village (PHV) gearbeitet. Zeitgleich zur stetigen Entwicklung des 16. Heidelberger Stadtteils wurde die Website www.phv-verbindet.de inhaltlich überarbeitet. Gespickt mit neuen Informationen, dem aktuellen Entwicklungsstand und einem kontinuierlichen Blick hinter die Kulissen bietet die Website einen Überblick zum zukunftsweisenden neuen Stadtteil. Fast alle Dezernate und mehrere Fachämter sind an der Neuplanung beteiligt. Doch was genau passiert hier? Diese Fragen beantwortet das Planungsteam der Verwaltung künftig regelmäßig in kurzen Videos und gibt wichtige Hintergrundinfos.


17. November 2023

Stadt informiert im Gemeinderat über PHV-Entwicklung

Auf der Konversionsfläche Patrick-Henry-Village (PHV) soll Heidelbergs 16. Stadtteil entstehen. Dafür hat der Gemeinderat im Februar 2022 ein wohnungspolitisches Konzept beschlossen. Danach sollen rund 5.000 Wohnungen in der ehemaligen Wohnsiedlung der US-Army gebaut werden. Die Hälfte davon wird im preisgünstigen Segment liegen. Fragen zum wohnungspolitischen Konzept seitens des Gemeinderats hat die Stadtverwaltung in einer Informationsvorlage zur Sitzung am 15. November 2023 beantwortet.


21. Juli 2023

Drei Entwicklungsphasen für neuen Stadtteil vorgestellt

Auf der Heidelberger Konversionsfläche Patrick-Henry-Village (PHV) entsteht ein neuer Stadtteil für mindestens 10.000 Menschen und mit rund 5.000 Arbeitsplätzen. So sieht es der Dynamische Masterplan vor, an dessen Realisierung die Stadt Heidelberg intensiv arbeitet. Zur weiteren Planung hat die Stadt Heidelberg drei Entwicklungsphasen für den künftigen Stadtteil vorgestellt. Über diese drei Abschnitte hat die Stadtverwaltung den Konversionsausschuss am 12. Juli 2023 und den Gemeinderat am 20. Juli 2023 informiert.


8. Mai 2023

OB Würzner traf Ministerpräsident Kretschmann in Stuttgart

Heidelbergs Oberbürgermeister Eckart Würzner und der baden-württembergische Ministerpräsident Winfried Kretschmann haben sich in einem direkten Gespräch am 4. Mai 2023 in Stuttgart zur weiteren Entwicklung von Patrick-Henry-Village (PHV) ausgetauscht. 


10. März 2023

Visualisierung des zufünftigen Stadtteils

Siegerentwurf für Parkway bei Planungswettbewerb gekürt

Der Siegerentwurf des freiraum- und verkehrsplanerischen Wettbewerbs zum neuen Parkway des Patrick-Henry-Village (PHV) liegt vor. Die Jury kürte am Mittwoch, 8. März 2023, die ausgewählte Arbeit der Planergruppe Oberhausen, Essen, zum Sieger, die diese gemeinschaftlich mit Argus Stadt und Verkehr Partmb, Hamburg, und Cityförster architecture+urbanism, Hannover, erstellt hatten. Die Planung bringt nach Ansicht der Jury auf innovative Art und Weise verkehrliche Anforderungen und die Qualitäten eines lebendigen Stadtraums zusammen.


10. März 2023

Umsetzung des Masterplans braucht mehr Zeit

Auf der Heidelberger Konversionsfläche Patrick-Henry-Village (PHV) entsteht ein neuer Stadtteil für mindestens 10.000 Menschen und maximal 5.000 Arbeitsplätze. So sieht es der Dynamische Masterplan vor, an dessen Realisierung die Stadt Heidelberg intensiv arbeitet. In den vergangenen Monaten hat sich nun an vielen Stellen gezeigt, dass die Zeitplanung bei den einzelnen Entwicklungsstufen angepasst werden muss.


21. Juli 2022

Grafische Darstellung der aktuellen Wettbewerbsbereiche für PHV. Der Bereich für das Ankunftszentrum ist schwarz umrandet. (Foto: Stadt Heidelberg)

Eckpunkte des Planungswettbewerbs für neues Ankunftszentrum beschlossen

Das Ankunftszentrum des Landes Baden-Württemberg für Geflüchtete wird in Patrick-Henry-Village (PHV) bleiben. Einem konkreten Standortvorschlag im Norden des Areals hat der Gemeinderat bereits Dezember 2021 zugestimmt. Im März 2022 wurde die Anpassung des dynamischen Masterplans mit Ankunftszentrum vorgestellt – in seiner jüngsten Sitzung am 20. Juli hat das Gremium nun auch die Eckpunkte für einen entsprechenden Planungswettbewerb bestätigt. Ziel des Wettbewerbs ist es demnach, ein neues, in Patrick-Henry-Village integriertes, zukunftsweisendes und nachhaltiges Ankunftszentrums zu planen und zu bauen. 


18. März 2022

Ankunftszentrum wird in den Masterplan integriert

Das Ankunftszentrum des Landes Baden-Württemberg für Geflüchtete wird in Patrick-Henry-Village (PHV) bleiben und dort künftig in Neubauten angesiedelt sein. Den Standortvorschlag und die entsprechende Überarbeitung des Dynamischen Masterplans PHV hatte der Gemeinderat bereits im Dezember 2021 beschlossen. Nun erhielt der Gemeinderat in seiner jüngsten Sitzung am 17. März Einblicke in die Änderungsvorschläge des beauftragten Büros KCAP. 


5. Januar 2022

Patrick-Henry-Village: Umsetzung des Masterplans braucht mehr Zeit

Ein Kernziel des dynamischen Masterplans für PHV ist die Schaffung von Wohnraum für alle. Ein besonderes Augenmerk liegt auf dem preisgünstigen Segment und der Schaffung von Angeboten für junge Familien, Starterhaushalte (Studierende und Auszubildende) sowie Senioren. Damit dies gelingt, hat die Stadt Heidelberg in enger Abstimmung mit dem Gemeinderat und Experten aus der Wohnungswirtschaft ein wohnungspolitisches Konzept entwickelt. Es sieht unter anderem vor, dass 50 Prozent der entstehenden Wohnfläche im preisgünstigen Segment liegen soll. Das Verhältnis von Mietwohnungen zu Eigentum soll ebenfalls 50:50 sein. 


10. Dezember 2021

Ankunftszentrum: neuer Standort im Patrick-Henry-Village zu beiden Seiten des „Parkway“

Lange wurde darum gerungen, wo das Ankunftszentrum des Landes Baden-Württemberg für Menschen auf der Flucht künftig angesiedelt sein soll. Der Gemeinderat hat in seiner Sitzung am 9. Dezember 2021 einem Vorschlag der Verwaltung zugestimmt, wonach das Zentrum auf Patrick-Henry-Village (PHV) bleibt. Als Ort für den Neubaukomplex sind Grundstücke im nord-östlichen Bereich zwischen Autobahn 5 und „Parkway“ sowie westlich davon in mittiger Lage vorgesehen. Das Ankunftszentrum wird also zu beiden Seiten der künftigen Haupterschließungsachse liegen und damit mitten im Stadtteil.


10. Dezember 2021

Die Grafik zeigt wie Fußgänger- und Radwege in Patrick Henry Village künftig aussehen könnten

Planungswettbewerb für wichtigste Erschließungsachse beschlossen

Ein wesentliches städtebauliches Element im neuen Stadtteil wird der „Parkway“: eine geschwungene, ringförmige Straße zwischen der künftigen „grünen Mitte“ und den äußeren Quartieren. Wie der „Parkway“ genau gestaltet wird, soll nun im Rahmen eines Planungswettbewerbes geklärt werden. Der Gemeinderat hat in seiner Sitzung am 9. Dezember 2021 einer entsprechenden Auslobung zugestimmt. Ziel ist es, die Preisgerichtssitzung im zweiten Quartal 2022 durchzuführen.


19. Oktober 2021

Zwei Personen bei einem Capoeira-Kampf. Im Hintergrund wird eine Trommel gespielt. Mehrere Personen stehen um den Kampf und klatschen.

Sport auf PHV: Vereine nutzen bestehende Flächen

Die Stadt Heidelberg erstellt derzeit in Kooperation mit dem Institut für Sport und Sportwissenschaft der Universität Heidelberg (ISSW) und dem Sportkreis Heidelberg einen Sportstättenentwicklungsplan für das Patrick-Henry-Village (PHV). Die Ergebnisse werden voraussichtlich Anfang 2022 vorgestellt. Zuletzt wurden bereits die bestehenden Sportflächen im Süden von PHV so ertüchtigt, dass dort übergangsweise Sport stattfinden kann. Die Nutzung wird vom Sportkreis Heidelberg koordiniert.


19. Oktober 2021

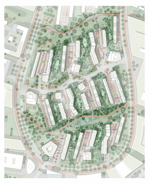
grafische Darstellung neuer Wohnbereiche in Patrick-Henry-Village

 

Wettbewerbsergebnis für erste Wohnquartiere

In einem ersten Schritt wird die Bundesanstalt für Immobilienaufgaben (BImA) als Eigentümerin der rund 100 Hektar großen Liegenschaft damit beginnen, im südlichen Teil von PHV neuen Wohnraum und Arbeitsorte zu schaffen. Nach der Wettbewerbsausschreibung sollten auf den Baufeldern B3 und B4 Wohnraum für 1.200 bis circa 1.400 Bewohner und Flächen für rund 400 Arbeitsplätze geschaffen werden. Dabei bestand der Wunsch, so viel Gebäudebestand zu erhalten, dass das charakteristische Bild der Siedlung als Identität weitergetragen wird. 


15. Oktober 2021

Ein Stadtteilmanagement für PHV

Die ehemalige US-Army-Wohnsiedlung Patrick-Henry-Village (PHV) im Südwesten von Heidelberg wird in den kommenden Jahren zu Heidelbergs 16. Stadtteil entwickelt. Um von Anfang an das Entstehen von guten Nachbarschaften und stabilen Sozialstrukturen zu fördern, soll frühzeitig ein Stadtteilmanagement etabliert werden.


28. Juli 2021

Grünfläche mit Teich und Bäumen im Hintergrund Gebäude und Menschen

Wohnungspolitisches Konzept wird bis Jahresende erarbeitet

Auf PHV entstehen in den kommenden Jahren viele neue Wohnungen – und damit diese Wohnungen dringend benötigte Bedarfe in Heidelberg treffen, erarbeitet die Stadt Heidelberg bis zum Jahresende 2021 ein wohnungspolitisches Konzept. Es soll zeigen, wie PHV schrittweise zu einem vielfältigen und nutzungsgemischten Stadtteil für alle entwickelt werden kann. 


23. Juli 2021

Ankunftszentrum: Masterplan für Patrick-Henry-Village wird überarbeitet

Der Masterplan für das Patrick-Henry-Village wird überarbeitet, damit das Ankunftszentrum für Geflüchtete des Landes Baden-Württemberg dort integriert werden kann. Der Gemeinderat stimmte einem entsprechenden Vorschlag in seiner Sitzung am 22. Juli 2021 mit großer Mehrheit zu.


3. Februar 2021

Patrick-Henry-Village erhält höchste Fördersumme im Städtebau-Programm

Heidelberg erhält für zwei Bauprojekte auf den Konversionsflächen eine massive Förderung aus der Städtebauförderung 2021. Die Entwicklung von Patrick-Henry-Village (PHV) zu einem neuen Stadtteil hat sogar die höchste Fördersumme im kompletten Programm erhalten. 3,5 Millionen Euro fließen hierfür nach Heidelberg.


4. Dezember 2020

Bundesanstalt startet Entwicklung von mehreren hundert Wohnungen

Die Stadt Heidelberg und die Bundesanstalt für Immobilienaufgaben (BImA) wollen gemeinsam möglichst schnell die ehemalige US-Fläche Patrick-Henry-Village (PHV) entwickeln. Auf der Grundlage des dafür bereits vom Heidelberger Gemeinderat beschlossenen dynamischen Masterplans der Internationalen Bauausstellung (IBA) wird die BImA als Eigentümerin der Liegenschaft im Heidelberger Süden jetzt damit beginnen, auf den ersten Flächen neuen Wohnraum zu schaffen.


4. Dezember 2020

Männer stehen auf dem Gelände von Patrick-Henry-Village.

Stellten die Pläne für die Schaffung von Mietwohnungen in Patrick-Henry-Village vor: (v.l.) IBA-Geschäftsführer Professor Michael Braum, Baubürgermeister Jürgen Odszuck, BImA-Vorstandsmitglied Paul Johannes Fietz, Oberbürgermeister Prof. Dr. Eckart Würzner und Konversionsbürgermeister Hans-Jürgen Heiß. (Foto Dittmer)


19. Juni 2020

Patrick-Henry-Village: Gemeinderat stimmt für dynamischen Masterplan von Stadt und IBA

Der Gemeinderat hat den Weg für die Entwicklung von Patrick-Henry-Village zum 16. Heidelberger Stadtteil geebnet. Das Gremium beschloss in seiner Sitzung am 18. Juni den dynamischen Masterplan von Stadt und Internationaler Bauausstellung (IBA). Die ehemalige US-Wohnsiedlung westlich der Autobahn 5 wird demnach zu einem Zukunftsquartier, in dem mindestens 10.000 Menschen wohnen und 5.000 arbeiten sollen. Das Ankunftszentrum für Geflüchtete, welches das Land Baden-Württemberg aktuell noch im Herzen von PHV betreibt, wird auf das Gewann „Wolfsgärten“ im Stadtteil Wieblingen umziehen. Der Gemeinderat stimmte mehrheitlich für eine Verlagerung der Landeseinrichtung auf das rund acht Hektar große Areal am Autobahnkreuz Heidelberg.


21. Februar 2020

Straßenbahn nach Patrick-Henry-Village: Sieben Varianten werden weiter untersucht

Damit der künftige Heidelberger Stadtteil eine gute Anbindung an den öffentlichen Nahverkehr erhält, hat die Stadt Heidelberg gemeinsam mit der Rhein-Neckar-Verkehr GmbH (rnv) verschiedene Varianten für eine mögliche Straßenbahnführung nach PHV untersucht. Auf Beschluss des Gemeinderats sollen nun insgesamt sieben Trassenvarianten weiter untersucht werden.


16. Januar 2020

290 Bürgereingaben zur Zukunft von Patrick-Henry-Village

Intensive Diskussionen über das Für und Wider einer Straßenbahnanbindung, viele Plädoyers für landwirtschaftlich genutzte Flächen und eine breite Palette an Ideen – von beleuchteten Fahrradschnellwegen bis hin zu einer teilweisen Überdeckelung der Autobahn 5. Rund einen Monat lang konnten Bürgerinnen und Bürger ihre Anregungen zur Zukunft von Patrick-Henry-Village abgeben. Insgesamt wurden 290 Eingaben mit Anregungen, Hinweise und Ideen gemacht. 


12. Januar 2020

Besucher beim Bürgerfest 2020 in PHV (Foto: Dittmer)

Bürgerfest in Patrick-Henry-Village

Rund 15.000 Besucherinnen und Besucher zog es am Sonntag, 12. Januar 2020, zum Bürgerfest in das Patrick-Henry-Village (PHV). Von 11.30 bis 17 Uhr gab es ein interessantes Programm für die ganze Familie. Interessierte konnten sich beim Bürgerfest im ehemaligen Supermarkt („Commissary“) über den aktuellen Planungsstand zur Entwicklung der Fläche im Südwesten Heidelbergs informieren und Ihre Ideen und Anmerkungen einbringen.

mehr dazu


9. Dezember 2019

Bürgerbeteiligung zum dynamischen Masterplan

Die Bürgerschaft konnte sich zwischen dem 9. Dezember 2019 und dem 15. Januar 2020 unter www.phv-mitsprechen.de online über den Plan sowie seine Ziele und Umsetzungsprinzipien informieren und direkt Anregungen und Hinweise geben. Ein Höhepunkt im Beteiligungsverfahren wird das Bürgerfest am 12. Januar 2020 werden. Das Fest findet auf PHV statt, so dass sich die Bürgerschaft vor Ort ein Bild von der Fläche machen und anschließend Anregungen geben kann. 


5. Dezember 2019

Konversionsbürgermeister Hans-Jürgen Heiß und Erster Bürgermeister Jürgen Odszuck auf der Konversionsfläche PHV. (Foto: Rothe)

Zukunftsstadtteil mit grünem Herz - Dynamischer Masterplan für PHV vorgestellt

Heidelbergs größte Konversionsfläche wird sich in den kommenden Jahren zum 16. Stadtteil entwickeln. Bei einem Pressegespräch auf der fast 100 Hektar großen Fläche haben Vertreter der Stadt und der Internationalen Bauausstellung (IBA) Heidelberg das Planwerk vorgestellt. 

mehr dazu


7. Oktober 2019

PHV: Stadt Heidelberg und BImA unterzeichnen Entwicklungsvereinbarung

München, 7. Oktober 2019: Startschuss für eine neue Form der Zusammenarbeit: Heidelbergs Bürgermeister Hans-Jürgen Heiß und Paul Johannes Fietz, Vorstandsmitglied der Bundesanstalt für Immobilienaufgaben (BImA), haben heute auf der internationalen Immobilienmesse EXPO REAL eine Vereinbarung zur baulichen Entwicklung der ehemaligen US-Wohnsiedlung Patrick-Henry-Village unterzeichnet. Gemeinsames Ziel von Stadt und BImA ist, die Pläne für das knapp 100 Hektar große Areal durch eine enge Partnerschaft möglichst schnell voranzutreiben.


8. Oktober 2019

Impressionen der Eröffnung des Metropolink-Festivals 2019 (Foto: Rothe)

PHV: 2020 sollen erste Pioniernutzer auf die ehemalige US-Fläche

In das seit 2014 leerstehende Patrick-Henry-Village (PHV) soll 2020 wieder Leben einziehen. Die Stadt Heidelberg plant in enger Zusammenarbeit mit der BImA, dass die ersten Pioniernutzer im Laufe des Jahres auf dem ehemaligen US-Areal tätig werden können. Angedacht sind Zwischennutzungen in den Bereichen Kultur, Sport und Freizeit sowie Kreativwirtschaft.

mehr dazu


10. Mai 2019

Patrick-Henry-Village: Planungen werden in dynamischem Masterplan konkretisiert

Die Stadt Heidelberg entwickelt die Konversionsfläche Patrick-Henry-Village (PHV) gemeinsam mit der Internationalen Bauausstellung (IBA) Heidelberg und weiteren Partnern zu einer „Wissensstadt der Zukunft“. Im nächsten Schritt werden in den kommenden Monaten die bestehenden Planungen in einem dynamischen Masterplan unter Einbeziehung von externen Experten konkretisiert. Der Masterplan wird dann voraussichtlich im ersten Quartal 2020 die Grundlage für die weiteren politischen Entscheidungen und die Bürgerbeteiligung bilden.


25. März 2019

Rund drei Millionen Euro aus der Städtebauförderung fließen nach Heidelberg

Das Land Baden-Württemberg und der Bund hat den Städten und Gemeinden im Südwesten insgesamt rund 257,4 Millionen Euro für städtebauliche Erneuerungsmaßnahmen bewilligt – und rund drei Millionen Euro davon fließen nach Heidelberg. Im Einzelnen gehen 2,2 Millionen Euro in das Konversionsprojekt US Hospital, wo rund 600 Wohnungen neu gebaut werden. 500.000 Euro wurden für vorbereitende Untersuchungen zur zivilen Nutzung der Fläche Patrick-Henry-Village bewilligt. Ferner kommen 304.000 Euro aus dem Bund-Länder-Pakt „Soziale Integration im Quartier“ für den Umbau der ehemaligen Chapel an der Römerstraße (Südstadt) zu einem Bürgerzentrum.


23. November 2018

Die Entwicklungsvision von PHV als „Wissensstadt der Zukunft“ (Visualisierung KCAP).

Stadt strebt Bundesförderung für Patrick-Henry-Village an

Die Stadt Heidelberg wird sich mit dem Entwicklungsszenario für die Konversionsfläche Patrick-Henry-Village beim Bundesprogramm „Nationale Projekte des Städtebaus“ bewerben. Das hat der Gemeinderat in seiner Sitzung am 22. November 2018 einstimmig beschlossen.

mehr dazu


22. Oktober 2018

Ankunftszentrum des Landes für Geflüchtete soll auf Heidelberger Gemarkung bleiben

Das Land Baden-Württemberg möchte das Ankunftszentrum für Geflüchtete von seinem derzeitigen Standort auf Patrick-Henry-Village auf eine derzeit ungenutzte Fläche beim Autobahnkreuz Heidelberg verlagern.


25. Juli 2018

Ankunftszentrum im Patrick-Henry-Village: Land soll bis Jahresende Zeitplan zur Verlagerung vorlegen

Das Ankunftszentrum im Patrick-Henry-Village (PHV) soll verlagert werden – wann genau kann das Land Baden-Württemberg aber aktuell noch nicht sagen. Der Gemeinderat der Stadt Heidelberg hat nun in seiner Sitzung am 24. Juli mit großer Mehrheit beschlossen, sich gegen eine weitere baurechtliche Duldung der Einrichtung über das Jahr 2018 hinaus auszusprechen, wenn das Land keinen konkreten Termin zur Räumung des PHV mitteilt.


17. Oktober 2018

Karte mit möglicher Straßenbahnführung markiert (Bild: Peh und Schefcik)

Straßenbahnanbindung für Patrick-Henry-Village

Damit die zukünftigen Bewohnerinnen und Bewohner eine gute Anbindung an den öffentlichen Nahverkehr erhalten, hat die Stadt Heidelberg gemeinsam mit der Rhein-Neckar-Verkehr GmbH (rnv) Varianten für mögliche Straßenbahnführungen nach PHV untersucht. 

mehr dazu


15. Dezember 2017

Entwicklungsvision der IBA ist nun offizielle Planungsgrundlage

Für die Entwicklung des Patrick-Henry-Village (PHV) gibt es nun eine offizielle Planungsgrundlage. Der Gemeinderat beschloss in seiner Sitzung am 14. Dezember 2017 einstimmig die seit März 2017 vorliegende Entwicklungsvision als Masterplan – und somit als formale Grundlage für den weiteren Prozess.


13. April 2017

Heidelberg wird mit Software-Konzern RIB das Patrick-Henry-Village komplett digital planen

Die Stadt Heidelberg und die iTWOcity AG – eine Tochter des Software-Konzerns RIB SE – wollen gemeinsam die Konversionsfläche Patrick-Henry-Village vollständig digital planen und in die Entwicklung bringen.

mehr dazu


30. März 2017

Patrick-Henry-Village - Die Wissensstadt von morgen

Auf der US-Konversionsfläche Patrick-Henry-Village  (PHV) soll eine „Wissensstadt von morgen“ entstehen. In einer einjährigen Planungsphase Null entwarfen internationale Städtebauer im Dialog mit überregionalen und lokalen Experten sowie der Heidelberger Stadtgesellschaft Szenarien.

mehr dazu


16. Dezember 2016

Die Zukunft des Patrick Henry Village

Wie sieht die Zukunft der US-Konversionsfläche Patrick Henry Village (PHV) in Heidelberg aus? Zu dieser Frage hat die Internationale Bauausstellung im Mai diesen Jahres fünf weltweit tätige Architekturbüros zusammengebracht, um mögliche Szenarien für die Fläche zu entwickeln. Am Donnerstag, 15. Dezember 2016, konnte man in Heidelberg die weitere Zwischenergebnisse dieser Zusammenarbeit erleben.


15. November 2016

IBA startet Planungsphase Null auf Heidelbergs größter Konversionsfläche

Rege Beteiligung gab es beim ersten Bürgerforum der IBA Heidelberg zum Patrick Henry Village, Heidelbergs größter Konversionsfläche: Rund 150 Interessierte kamen am Dienstag, 31. Mai 2016, ins Dezernat 16 in Heidelberg.

mehr dazu


26. September 2016

Ankaufsverhandlung für Patrick Henry Village und Hospital können starten

Die Stadt Heidelberg geht die nächste Etappe bei der Entwicklung der Konversionsflächen Patrick Henry Village (PHV) und US Hospital an: Das Land Baden-Württemberg hat jetzt die sogenannte Freigabe für das gesamte Hospital-Areal sowie für weite Teile von PHV erteilt. Damit kann die Stadt in Ankaufsverhandlungen mit der Bundesanstalt für Immobilienaufgaben (BImA) eintreten.


24. Mai 2016

Wie wird das Patrick Henry Village zur„Wissensstadt von Morgen“?

Das ehemalige Patrick Henry Village, die größte Heidelberger Konversionsfläche, soll zu einem Modell für die Wissensstadt von Morgen werden. Ein erstes Bürgerforum der Internationalen Bauausstellung zum PHV sammelt Fragestellungen der Bürgerinnen und Bürger für Heidelbergs größte Konversionsfläche.

mehr dazu


24. April 2015

Idee für Planungsverfahren Patrick Henry Village und Airfield vorgestellt

Der Entwicklungsbeirat Konversion, ein 34-köpfiges Gremium mit Vertreterinnen und Vertretern aus Bürgerschaft, Verbänden und dem Gemeinderat, ist am Dienstag, 21. April, über einen Vorschlag für ein Planungs- und Beteiligungsverfahren zu den Flächen Patrick Henry Village (PHV) und Airfield informiert worden.


5. Januar 2022

Die Hälfte des Wohnraums auf Patrick-Henry-Village soll preisgünstig werden

Ein Kernziel des dynamischen Masterplans für PHV ist die Schaffung von Wohnraum für alle. Ein besonderes Augenmerk liegt auf dem preisgünstigen Segment und der Schaffung von Angeboten für junge Familien, Starterhaushalte (Studierende und Auszubildende) sowie Senioren. Damit dies gelingt, hat die Stadt Heidelberg in enger Abstimmung mit dem Gemeinderat und Experten aus der Wohnungswirtschaft ein wohnungspolitisches Konzept entwickelt. Es sieht unter anderem vor, dass 50 Prozent der entstehenden Wohnfläche im preisgünstigen Segment liegen soll. Das Verhältnis von Mietwohnungen zu Eigentum soll ebenfalls 50:50 sein. 


5. Januar 2022

Die Hälfte des Wohnraums auf Patrick-Henry-Village soll preisgünstig werden

Ein Kernziel des dynamischen Masterplans für PHV ist die Schaffung von Wohnraum für alle. Ein besonderes Augenmerk liegt auf dem preisgünstigen Segment und der Schaffung von Angeboten für junge Familien, Starterhaushalte (Studierende und Auszubildende) sowie Senioren. Damit dies gelingt, hat die Stadt Heidelberg in enger Abstimmung mit dem Gemeinderat und Experten aus der Wohnungswirtschaft ein wohnungspolitisches Konzept entwickelt. Es sieht unter anderem vor, dass 50 Prozent der entstehenden Wohnfläche im preisgünstigen Segment liegen soll. Das Verhältnis von Mietwohnungen zu Eigentum soll ebenfalls 50:50 sein. 


10. Dezember 2021

Ankunftszentrum: neuer Standort im Patrick-Henry-Village zu beiden Seiten des „Parkway“

Lange wurde darum gerungen, wo das Ankunftszentrum des Landes Baden-Württemberg für Menschen auf der Flucht künftig angesiedelt sein soll. Der Gemeinderat hat in seiner Sitzung am 9. Dezember 2021 einem Vorschlag der Verwaltung zugestimmt, wonach das Zentrum auf Patrick-Henry-Village (PHV) bleibt. Als Ort für den Neubaukomplex sind Grundstücke im nord-östlichen Bereich zwischen Autobahn 5 und „Parkway“ sowie westlich davon in mittiger Lage vorgesehen. Das Ankunftszentrum wird also zu beiden Seiten der künftigen Haupterschließungsachse liegen und damit mitten im Stadtteil.


10. Dezember 2021

Die Grafik zeigt wie Fußgänger- und Radwege in Patrick Henry Village künftig aussehen könnten

Planungswettbewerb für wichtigste Erschließungsachse beschlossen

Ein wesentliches städtebauliches Element im neuen Stadtteil wird der „Parkway“: eine geschwungene, ringförmige Straße zwischen der künftigen „grünen Mitte“ und den äußeren Quartieren. Wie der „Parkway“ genau gestaltet wird, soll nun im Rahmen eines Planungswettbewerbes geklärt werden. Der Gemeinderat hat in seiner Sitzung am 9. Dezember 2021 einer entsprechenden Auslobung zugestimmt. Ziel ist es, die Preisgerichtssitzung im zweiten Quartal 2022 durchzuführen.


19. Oktober 2021

Zwei Personen bei einem Capoeira-Kampf. Im Hintergrund wird eine Trommel gespielt. Mehrere Personen stehen um den Kampf und klatschen.

Sport auf PHV: Vereine nutzen bestehende Flächen

Die Stadt Heidelberg erstellt derzeit in Kooperation mit dem Institut für Sport und Sportwissenschaft der Universität Heidelberg (ISSW) und dem Sportkreis Heidelberg einen Sportstättenentwicklungsplan für das Patrick-Henry-Village (PHV). Die Ergebnisse werden voraussichtlich Anfang 2022 vorgestellt. Zuletzt wurden bereits die bestehenden Sportflächen im Süden von PHV so ertüchtigt, dass dort übergangsweise Sport stattfinden kann. Die Nutzung wird vom Sportkreis Heidelberg koordiniert.


19. Oktober 2021

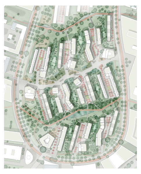
grafische Darstellung neuer Wohnbereiche in Patrick-Henry-Village

 

Wettbewerbsergebnis für erste Wohnquartiere

In einem ersten Schritt wird die Bundesanstalt für Immobilienaufgaben (BImA) als Eigentümerin der rund 100 Hektar großen Liegenschaft damit beginnen, im südlichen Teil von PHV neuen Wohnraum und Arbeitsorte zu schaffen. Nach der Wettbewerbsausschreibung sollten auf den Baufeldern B3 und B4 Wohnraum für 1.200 bis circa 1.400 Bewohner und Flächen für rund 400 Arbeitsplätze geschaffen werden. Dabei bestand der Wunsch, so viel Gebäudebestand zu erhalten, dass das charakteristische Bild der Siedlung als Identität weitergetragen wird. 


15. Oktober 2021

Ein Stadtteilmanagement für PHV

Die ehemalige US-Army-Wohnsiedlung Patrick-Henry-Village (PHV) im Südwesten von Heidelberg wird in den kommenden Jahren zu Heidelbergs 16. Stadtteil entwickelt. Um von Anfang an das Entstehen von guten Nachbarschaften und stabilen Sozialstrukturen zu fördern, soll frühzeitig ein Stadtteilmanagement etabliert werden.


28. Juli 2021

Grünfläche mit Teich und Bäumen im Hintergrund Gebäude und Menschen

Wohnungspolitisches Konzept wird bis Jahresende erarbeitet

Auf PHV entstehen in den kommenden Jahren viele neue Wohnungen – und damit diese Wohnungen dringend benötigte Bedarfe in Heidelberg treffen, erarbeitet die Stadt Heidelberg bis zum Jahresende 2021 ein wohnungspolitisches Konzept. Es soll zeigen, wie PHV schrittweise zu einem vielfältigen und nutzungsgemischten Stadtteil für alle entwickelt werden kann. 


23. Juli 2021

Ankunftszentrum: Masterplan für Patrick-Henry-Village wird überarbeitet

Der Masterplan für das Patrick-Henry-Village wird überarbeitet, damit das Ankunftszentrum für Geflüchtete des Landes Baden-Württemberg dort integriert werden kann. Der Gemeinderat stimmte einem entsprechenden Vorschlag in seiner Sitzung am 22. Juli 2021 mit großer Mehrheit zu.


3. Februar 2021

Patrick-Henry-Village erhält höchste Fördersumme im Städtebau-Programm

Heidelberg erhält für zwei Bauprojekte auf den Konversionsflächen eine massive Förderung aus der Städtebauförderung 2021. Die Entwicklung von Patrick-Henry-Village (PHV) zu einem neuen Stadtteil hat sogar die höchste Fördersumme im kompletten Programm erhalten. 3,5 Millionen Euro fließen hierfür nach Heidelberg.


4. Dezember 2020

Bundesanstalt startet Entwicklung von mehreren hundert Wohnungen

Die Stadt Heidelberg und die Bundesanstalt für Immobilienaufgaben (BImA) wollen gemeinsam möglichst schnell die ehemalige US-Fläche Patrick-Henry-Village (PHV) entwickeln. Auf der Grundlage des dafür bereits vom Heidelberger Gemeinderat beschlossenen dynamischen Masterplans der Internationalen Bauausstellung (IBA) wird die BImA als Eigentümerin der Liegenschaft im Heidelberger Süden jetzt damit beginnen, auf den ersten Flächen neuen Wohnraum zu schaffen.


4. Dezember 2020

Männer stehen auf dem Gelände von Patrick-Henry-Village.

Stellten die Pläne für die Schaffung von Mietwohnungen in Patrick-Henry-Village vor: (v.l.) IBA-Geschäftsführer Professor Michael Braum, Baubürgermeister Jürgen Odszuck, BImA-Vorstandsmitglied Paul Johannes Fietz, Oberbürgermeister Prof. Dr. Eckart Würzner und Konversionsbürgermeister Hans-Jürgen Heiß. (Foto Dittmer)


19. Juni 2020

Patrick-Henry-Village: Gemeinderat stimmt für dynamischen Masterplan von Stadt und IBA

Der Gemeinderat hat den Weg für die Entwicklung von Patrick-Henry-Village zum 16. Heidelberger Stadtteil geebnet. Das Gremium beschloss in seiner Sitzung am 18. Juni den dynamischen Masterplan von Stadt und Internationaler Bauausstellung (IBA). Die ehemalige US-Wohnsiedlung westlich der Autobahn 5 wird demnach zu einem Zukunftsquartier, in dem mindestens 10.000 Menschen wohnen und 5.000 arbeiten sollen. Das Ankunftszentrum für Geflüchtete, welches das Land Baden-Württemberg aktuell noch im Herzen von PHV betreibt, wird auf das Gewann „Wolfsgärten“ im Stadtteil Wieblingen umziehen. Der Gemeinderat stimmte mehrheitlich für eine Verlagerung der Landeseinrichtung auf das rund acht Hektar große Areal am Autobahnkreuz Heidelberg.


21. Februar 2020

Straßenbahn nach Patrick-Henry-Village: Sieben Varianten werden weiter untersucht

Damit der künftige Heidelberger Stadtteil eine gute Anbindung an den öffentlichen Nahverkehr erhält, hat die Stadt Heidelberg gemeinsam mit der Rhein-Neckar-Verkehr GmbH (rnv) verschiedene Varianten für eine mögliche Straßenbahnführung nach PHV untersucht. Auf Beschluss des Gemeinderats sollen nun insgesamt sieben Trassenvarianten weiter untersucht werden.


16. Januar 2020

290 Bürgereingaben zur Zukunft von Patrick-Henry-Village

Intensive Diskussionen über das Für und Wider einer Straßenbahnanbindung, viele Plädoyers für landwirtschaftlich genutzte Flächen und eine breite Palette an Ideen – von beleuchteten Fahrradschnellwegen bis hin zu einer teilweisen Überdeckelung der Autobahn 5. Rund einen Monat lang konnten Bürgerinnen und Bürger ihre Anregungen zur Zukunft von Patrick-Henry-Village abgeben. Insgesamt wurden 290 Eingaben mit Anregungen, Hinweise und Ideen gemacht. 


12. Januar 2020

Besucher beim Bürgerfest 2020 in PHV (Foto: Dittmer)

Bürgerfest in Patrick-Henry-Village

Rund 15.000 Besucherinnen und Besucher zog es am Sonntag, 12. Januar 2020, zum Bürgerfest in das Patrick-Henry-Village (PHV). Von 11.30 bis 17 Uhr gab es ein interessantes Programm für die ganze Familie. Interessierte konnten sich beim Bürgerfest im ehemaligen Supermarkt („Commissary“) über den aktuellen Planungsstand zur Entwicklung der Fläche im Südwesten Heidelbergs informieren und Ihre Ideen und Anmerkungen einbringen.

mehr dazu


9. Dezember 2019

Bürgerbeteiligung zum dynamischen Masterplan

Die Bürgerschaft konnte sich zwischen dem 9. Dezember 2019 und dem 15. Januar 2020 unter www.phv-mitsprechen.de online über den Plan sowie seine Ziele und Umsetzungsprinzipien informieren und direkt Anregungen und Hinweise geben. Ein Höhepunkt im Beteiligungsverfahren wird das Bürgerfest am 12. Januar 2020 werden. Das Fest findet auf PHV statt, so dass sich die Bürgerschaft vor Ort ein Bild von der Fläche machen und anschließend Anregungen geben kann. 


5. Dezember 2019

Konversionsbürgermeister Hans-Jürgen Heiß und Erster Bürgermeister Jürgen Odszuck auf der Konversionsfläche PHV. (Foto: Rothe)

Zukunftsstadtteil mit grünem Herz - Dynamischer Masterplan für PHV vorgestellt

Heidelbergs größte Konversionsfläche wird sich in den kommenden Jahren zum 16. Stadtteil entwickeln. Bei einem Pressegespräch auf der fast 100 Hektar großen Fläche haben Vertreter der Stadt und der Internationalen Bauausstellung (IBA) Heidelberg das Planwerk vorgestellt. 

mehr dazu


7. Oktober 2019

PHV: Stadt Heidelberg und BImA unterzeichnen Entwicklungsvereinbarung

München, 7. Oktober 2019: Startschuss für eine neue Form der Zusammenarbeit: Heidelbergs Bürgermeister Hans-Jürgen Heiß und Paul Johannes Fietz, Vorstandsmitglied der Bundesanstalt für Immobilienaufgaben (BImA), haben heute auf der internationalen Immobilienmesse EXPO REAL eine Vereinbarung zur baulichen Entwicklung der ehemaligen US-Wohnsiedlung Patrick-Henry-Village unterzeichnet. Gemeinsames Ziel von Stadt und BImA ist, die Pläne für das knapp 100 Hektar große Areal durch eine enge Partnerschaft möglichst schnell voranzutreiben.


8. Oktober 2019

Impressionen der Eröffnung des Metropolink-Festivals 2019 (Foto: Rothe)

PHV: 2020 sollen erste Pioniernutzer auf die ehemalige US-Fläche

In das seit 2014 leerstehende Patrick-Henry-Village (PHV) soll 2020 wieder Leben einziehen. Die Stadt Heidelberg plant in enger Zusammenarbeit mit der BImA, dass die ersten Pioniernutzer im Laufe des Jahres auf dem ehemaligen US-Areal tätig werden können. Angedacht sind Zwischennutzungen in den Bereichen Kultur, Sport und Freizeit sowie Kreativwirtschaft.

mehr dazu


10. Mai 2019

Patrick-Henry-Village: Planungen werden in dynamischem Masterplan konkretisiert

Die Stadt Heidelberg entwickelt die Konversionsfläche Patrick-Henry-Village (PHV) gemeinsam mit der Internationalen Bauausstellung (IBA) Heidelberg und weiteren Partnern zu einer „Wissensstadt der Zukunft“. Im nächsten Schritt werden in den kommenden Monaten die bestehenden Planungen in einem dynamischen Masterplan unter Einbeziehung von externen Experten konkretisiert. Der Masterplan wird dann voraussichtlich im ersten Quartal 2020 die Grundlage für die weiteren politischen Entscheidungen und die Bürgerbeteiligung bilden.


25. März 2019

Rund drei Millionen Euro aus der Städtebauförderung fließen nach Heidelberg

Das Land Baden-Württemberg und der Bund hat den Städten und Gemeinden im Südwesten insgesamt rund 257,4 Millionen Euro für städtebauliche Erneuerungsmaßnahmen bewilligt – und rund drei Millionen Euro davon fließen nach Heidelberg. Im Einzelnen gehen 2,2 Millionen Euro in das Konversionsprojekt US Hospital, wo rund 600 Wohnungen neu gebaut werden. 500.000 Euro wurden für vorbereitende Untersuchungen zur zivilen Nutzung der Fläche Patrick-Henry-Village bewilligt. Ferner kommen 304.000 Euro aus dem Bund-Länder-Pakt „Soziale Integration im Quartier“ für den Umbau der ehemaligen Chapel an der Römerstraße (Südstadt) zu einem Bürgerzentrum.


23. November 2018

Die Entwicklungsvision von PHV als „Wissensstadt der Zukunft“ (Visualisierung KCAP).

Stadt strebt Bundesförderung für Patrick-Henry-Village an

Die Stadt Heidelberg wird sich mit dem Entwicklungsszenario für die Konversionsfläche Patrick-Henry-Village beim Bundesprogramm „Nationale Projekte des Städtebaus“ bewerben. Das hat der Gemeinderat in seiner Sitzung am 22. November 2018 einstimmig beschlossen.

mehr dazu


22. Oktober 2018

Ankunftszentrum des Landes für Geflüchtete soll auf Heidelberger Gemarkung bleiben

Das Land Baden-Württemberg möchte das Ankunftszentrum für Geflüchtete von seinem derzeitigen Standort auf Patrick-Henry-Village auf eine derzeit ungenutzte Fläche beim Autobahnkreuz Heidelberg verlagern.


25. Juli 2018

Ankunftszentrum im Patrick-Henry-Village: Land soll bis Jahresende Zeitplan zur Verlagerung vorlegen

Das Ankunftszentrum im Patrick-Henry-Village (PHV) soll verlagert werden – wann genau kann das Land Baden-Württemberg aber aktuell noch nicht sagen. Der Gemeinderat der Stadt Heidelberg hat nun in seiner Sitzung am 24. Juli mit großer Mehrheit beschlossen, sich gegen eine weitere baurechtliche Duldung der Einrichtung über das Jahr 2018 hinaus auszusprechen, wenn das Land keinen konkreten Termin zur Räumung des PHV mitteilt.


17. Oktober 2018

Karte mit möglicher Straßenbahnführung markiert (Bild: Peh und Schefcik)

Straßenbahnanbindung für Patrick-Henry-Village

Damit die zukünftigen Bewohnerinnen und Bewohner eine gute Anbindung an den öffentlichen Nahverkehr erhalten, hat die Stadt Heidelberg gemeinsam mit der Rhein-Neckar-Verkehr GmbH (rnv) Varianten für mögliche Straßenbahnführungen nach PHV untersucht. 

mehr dazu


15. Dezember 2017

Entwicklungsvision der IBA ist nun offizielle Planungsgrundlage

Für die Entwicklung des Patrick-Henry-Village (PHV) gibt es nun eine offizielle Planungsgrundlage. Der Gemeinderat beschloss in seiner Sitzung am 14. Dezember 2017 einstimmig die seit März 2017 vorliegende Entwicklungsvision als Masterplan – und somit als formale Grundlage für den weiteren Prozess.


13. April 2017

Heidelberg wird mit Software-Konzern RIB das Patrick-Henry-Village komplett digital planen

Die Stadt Heidelberg und die iTWOcity AG – eine Tochter des Software-Konzerns RIB SE – wollen gemeinsam die Konversionsfläche Patrick-Henry-Village vollständig digital planen und in die Entwicklung bringen.

mehr dazu


30. März 2017

Patrick-Henry-Village - Die Wissensstadt von morgen

Auf der US-Konversionsfläche Patrick-Henry-Village  (PHV) soll eine „Wissensstadt von morgen“ entstehen. In einer einjährigen Planungsphase Null entwarfen internationale Städtebauer im Dialog mit überregionalen und lokalen Experten sowie der Heidelberger Stadtgesellschaft Szenarien.

mehr dazu


16. Dezember 2016

Die Zukunft des Patrick Henry Village

Wie sieht die Zukunft der US-Konversionsfläche Patrick Henry Village (PHV) in Heidelberg aus? Zu dieser Frage hat die Internationale Bauausstellung im Mai diesen Jahres fünf weltweit tätige Architekturbüros zusammengebracht, um mögliche Szenarien für die Fläche zu entwickeln. Am Donnerstag, 15. Dezember 2016, konnte man in Heidelberg die weitere Zwischenergebnisse dieser Zusammenarbeit erleben.


15. November 2016

IBA startet Planungsphase Null auf Heidelbergs größter Konversionsfläche

Rege Beteiligung gab es beim ersten Bürgerforum der IBA Heidelberg zum Patrick Henry Village, Heidelbergs größter Konversionsfläche: Rund 150 Interessierte kamen am Dienstag, 31. Mai 2016, ins Dezernat 16 in Heidelberg.

mehr dazu


26. September 2016

Ankaufsverhandlung für Patrick Henry Village und Hospital können starten

Die Stadt Heidelberg geht die nächste Etappe bei der Entwicklung der Konversionsflächen Patrick Henry Village (PHV) und US Hospital an: Das Land Baden-Württemberg hat jetzt die sogenannte Freigabe für das gesamte Hospital-Areal sowie für weite Teile von PHV erteilt. Damit kann die Stadt in Ankaufsverhandlungen mit der Bundesanstalt für Immobilienaufgaben (BImA) eintreten.


24. Mai 2016

Wie wird das Patrick Henry Village zur„Wissensstadt von Morgen“?

Das ehemalige Patrick Henry Village, die größte Heidelberger Konversionsfläche, soll zu einem Modell für die Wissensstadt von Morgen werden. Ein erstes Bürgerforum der Internationalen Bauausstellung zum PHV sammelt Fragestellungen der Bürgerinnen und Bürger für Heidelbergs größte Konversionsfläche.

mehr dazu


24. April 2015

Idee für Planungsverfahren Patrick Henry Village und Airfield vorgestellt

Der Entwicklungsbeirat Konversion, ein 34-köpfiges Gremium mit Vertreterinnen und Vertretern aus Bürgerschaft, Verbänden und dem Gemeinderat, ist am Dienstag, 21. April, über einen Vorschlag für ein Planungs- und Beteiligungsverfahren zu den Flächen Patrick Henry Village (PHV) und Airfield informiert worden.